Floor Plans
Rooms
-
Pitmaston House - Bedroom 1 is a commodious room with a superking bed Bedroom 1
On the first floor, Bedroom 1 the biggest bedroom in the house. It has a superking bed and it's own en suite shower room and dressing area. A lovely feature of this bedroom is the free standing bath positioned right in front of the window. This room has the option of 2 x Z beds at an extra charge each.
-
Pitmaston House - Bedroom 2 is a double room with a contemporary four poster bed, and an en suite bathroom with a separate shower Bedroom 2
Bedroom 2 is a double room on the first floor. It has an en suite bathroom with a separate shower. This room has the option of 2 x Z beds at an extra charge each.
-
Pitmaston House - Bedroom 3: Superking or twin? It's up to you. Bedroom 3
Bedroom 3 is on the first floor, with a zip and link bed giving the option of a super king or a twin room. It has an en suite shower room.
-
Pitmaston House - Bedroom 4 has a kingsize bed and an en suite shower room Bedroom 4
Bedroom 4 is a spacious room on the first floor, with a king size bed and an en suite shower room. This room has the option of 1 x Z bed at an extra charge.
-
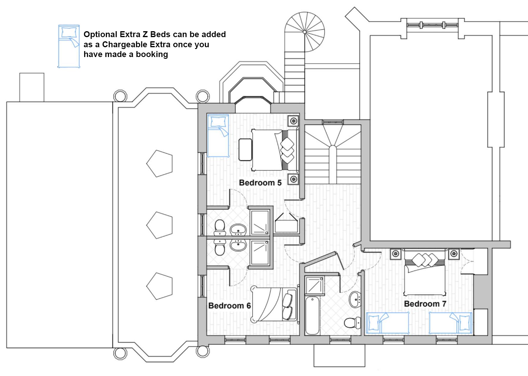
Pitmaston House - Stylish and funky, Bedroom 5 is on the second floor and has a kingsize bed and an en suite shower room Bedroom 5
Bedroom 5 is on the second floor and has a king size bed and an en suite shower room. This room has the option of 1 x Z bed at an extra charge.
-
Pitmaston House - Bedroom 6 is double aspect and has a lovely en suite shower room Bedroom 6
Bedroom 6 is on the second floor and has a double bed and an en suite shower room.
-
Pitmaston House - Bedroom 7, on the second floor has a kingsize bed and opulent feature wallpaper. There is an en suite bathroom with a separate shower Bedroom 7
Bedroom 7, on the second floor, has a king size bed and an en suite bathroom with a separate shower. This room has the option of 2 x Z beds at an extra charge each.
-
Pitmaston House - Bedroom 8 is on the ground floor and has an en suite shower room Bedroom 8
Bedroom 8 is on the ground floor with a zip and link bed giving the option of a super king or a twin room. It has an en suite shower room. This room can also accommodate 2 x Z beds at an extra charge each.
-
Pitmaston House - The former conservatory is now a kitchen with wow factor Kitchen
If requested, high chairs will be left for you in the kitchen or dining area.
-
Pitmaston House - Holiday house for 16 + 10, 2 miles from the centre of Worcester Equipment
2 highchairs and 2 cots are available at Pitmaston House. These should be requested when you do your bed configurations within your booking.