Floor Plans
Rooms
-
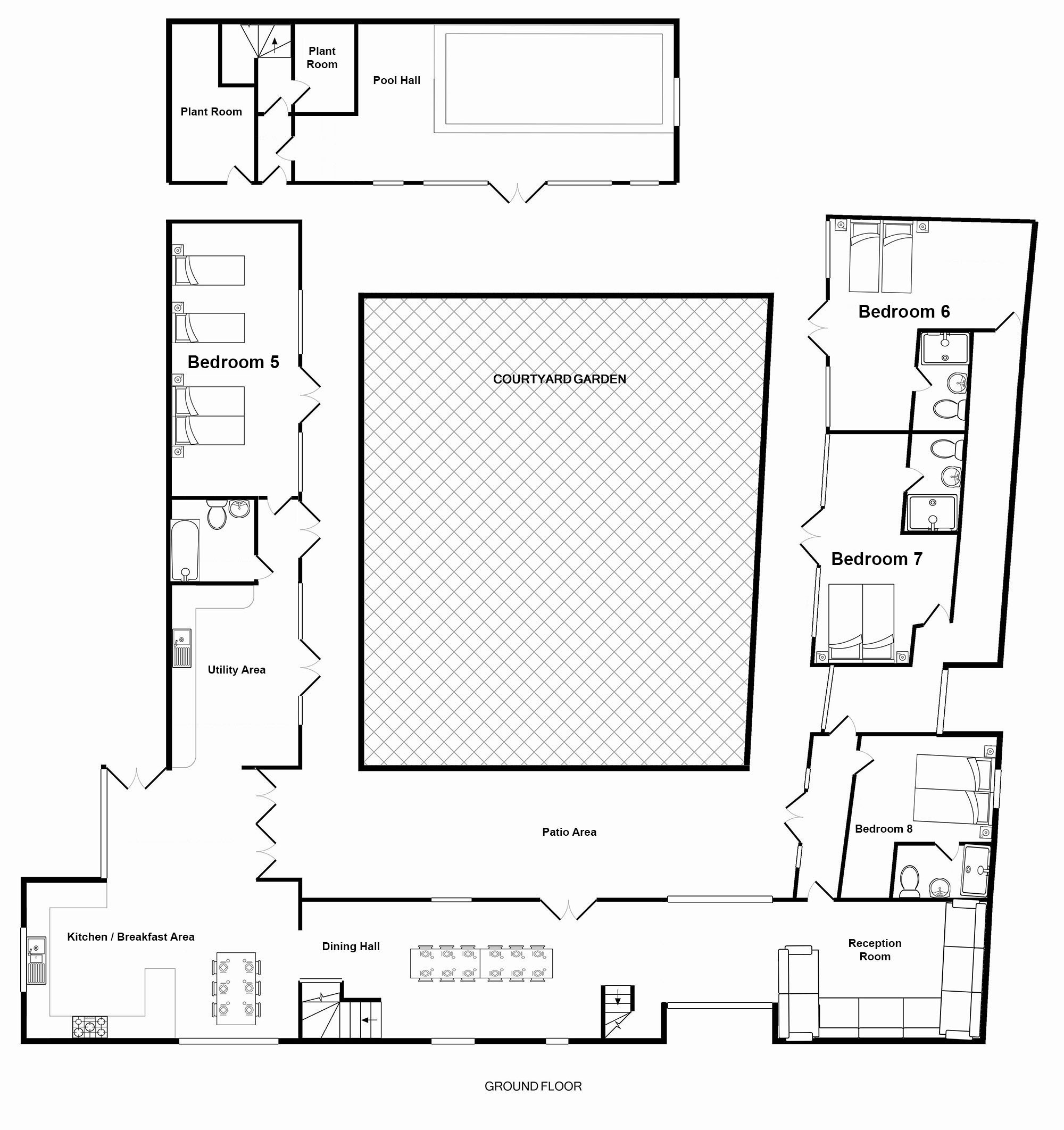
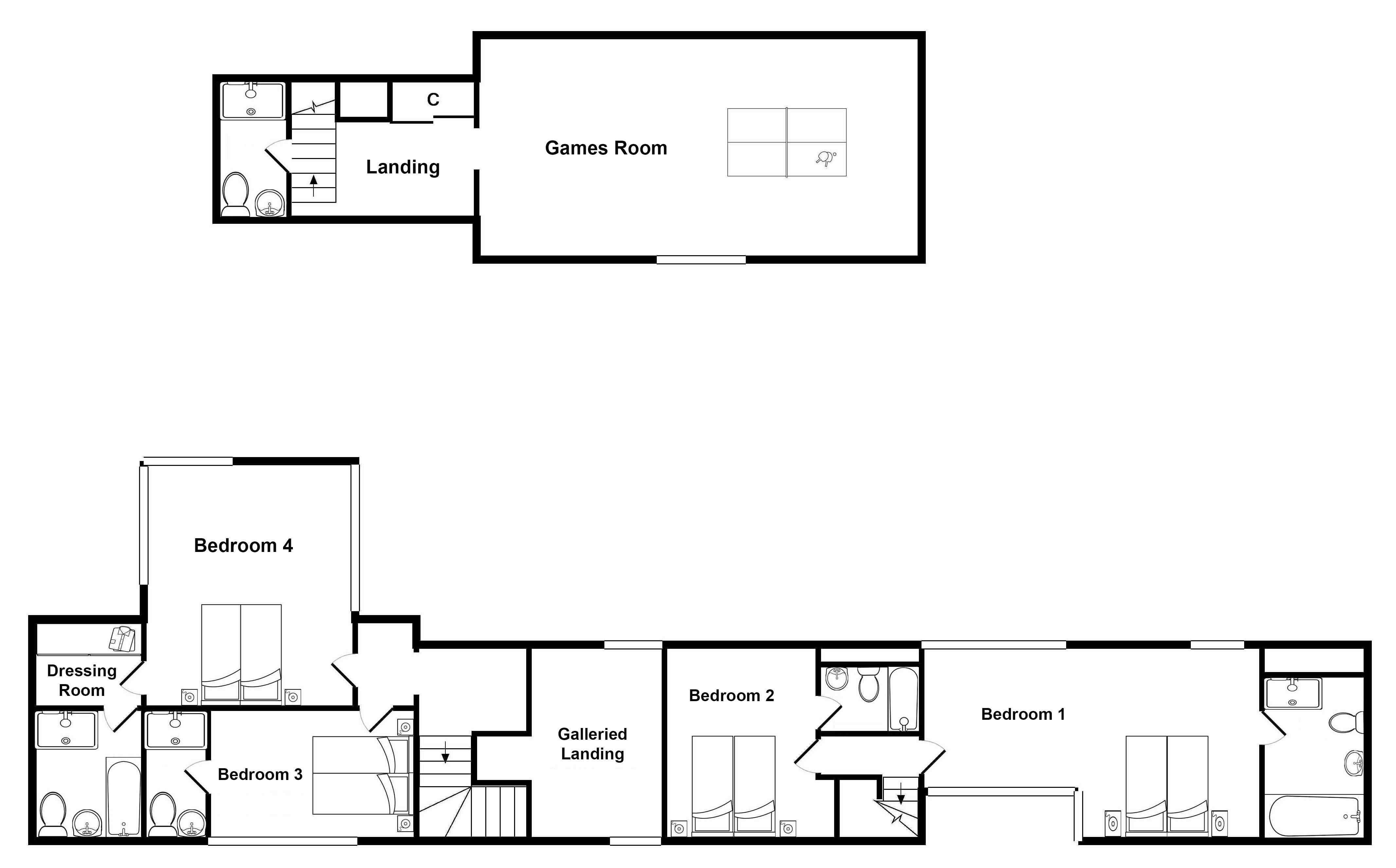
Coat Barn - Bedroom 1: spacious, light and airy with an ensuite bathroom Bedroom 1
A first floor room with zip and link beds (super king or twin) and an ensuite bathroom with a bath and separate shower.
Sleeps 2. -
Coat Barn - Bedroom 2 is on the first floor and has an ensuite bathroom Bedroom 2
A first floor room with zip and link beds (super king or twin) and an ensuite bathroom with a bath and overhead shower.
Sleeps 2. -
Coat Barn - Bedroom 3 is on the first floor and has an ensuite shower room Bedroom 3
A first floor room with zip and link beds (super king or twin) and an ensuite shower room.
Sleeps 2.
Note this room is not suitable for cots or toddler beds. -
Coat Barn - Bedroom 4 has a dressing room and an ensuite bathroom Bedroom 4
A first floor room with zip and link beds (super king or twin), a small dressing room and an ensuite bathroom with a bath and separate shower.
Sleeps 2. -
Coat Barn - Bedroom 5 is on the ground floor and can sleep 4 Bedroom 5
A family room on the ground floor. Beds can be arranged as 2 super kings, a super king and 2 singles, or 4 singles. Right next to it is a bathroom with a bath and overhead shower.
Sleeps 4. -
Coat Barn - Bedroom 6 is on the ground floor and has an ensuite shower room Bedroom 6
A ground floor room with zip and link beds (super king or a twin) and an ensuite shower room.
Sleeps 2. -
Coat Barn - Bedroom 7 is also on the ground floor, and has an ensuite shower room Bedroom 7
A ground floor room with zip and link beds (super king or twin) and an ensuite shower room.
Sleeps 2.
-
Coat Barn - Bedroom 8 is another ground floor room with ensuite shower facilities Bedroom 8
A ground floor room with zip and link beds (super king or a twin) and an ensuite shower room.
Sleeps 2.
Note this room is not suitable for cots or toddler beds. -
Coat Barn - Plenty of room for chit-chat while you cook Kitchen
2 highchairs are available. If requested these will be left in the kitchen.
-
Coat Barn - Sleeps 18 in 8 bedrooms for large family holidays in the country Equipment
This property owner offers the following items. If required these can be selected while doing your bed configurations within your booking.
2 x Full Size Cots (age 2 yrs and under)
2 x Toddler Beds (age 4 yrs and under)
3 x Highchairs
1 x Shower Chair
1 x Wheelchair Ramp
1 x Microwave Steriliser
2 x Bouncy Chairs for babies