Floor Plans
Rooms
-
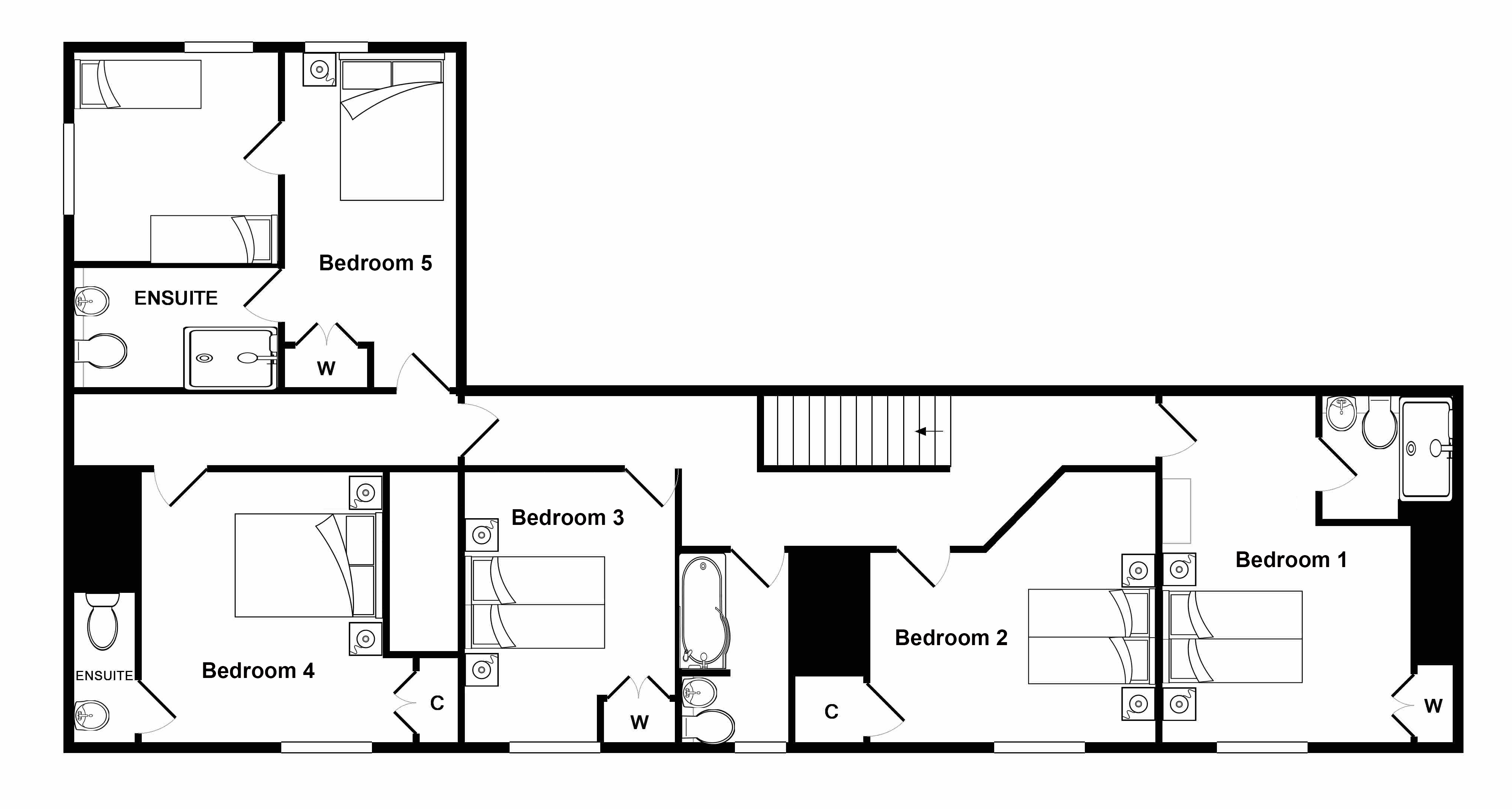
Whispering Thatch - Bedroom 1: Zip and links beds (super king or twin) and an ensuite shower room Bedroom 1
This room is on the first floor and has zip and link beds (super king or twin). It has an ensuite shower room.
Sleeps 2. -
Whispering Thatch - Bedroom 2: Zip and link beds (super king or twin), a lovely big window seat, old floorboards... Bedroom 2
This room is on the first floor and has zip and link beds (super king or twin). It has shared use of the family bathroom just along the landing.
Sleeps 2. -
Whispering Thatch - Bedroom 3: Zip and link beds (super king or twin), a huge built in cupboard for your clothes, and country views Bedroom 3
This room is on the first floor and has zip and link beds (super king or twin). It has shared use of the family bathroom.
Sleeps 2. -
Whispering Thatch - Bedroom 4 has a super king bed and an ensuite WC Bedroom 4
This room is on the first floor and has a super king bed and use of the family bathroom.
Sleeps 2. -
Whispering Thatch - Bedroom 5 has two interlinking rooms with an ensuite shower room - great for a family! Bedroom 5
This is a family suite on the first floor with two interlinking rooms, one a double, the other a twin. It has an ensuite shower room.
Sleeps 4. -
Whispering Thatch - Bedroom 6 is on the ground floor in the integral annex and has French doors to the garden Bedroom 6
This room is on the ground floor in the integral annexe and has zip and link beds which can be a super king or twins, and an ensuite shower room.
Sleeps 2. -
Whispering Thatch - Country living with all mod cons Kitchen
If requested, high chairs will be left for you in the kitchen or dining area.
-
Whispering Thatch - A gorgeous English country cottage with a hot tub and snooze space for 14 Equipment
This property owner offers the following items. If required these can be selected while doing your bed configurations within your booking.
2 x Highchairs
2 x Travel Cots (age 2 yrs and under)