Rooms
-
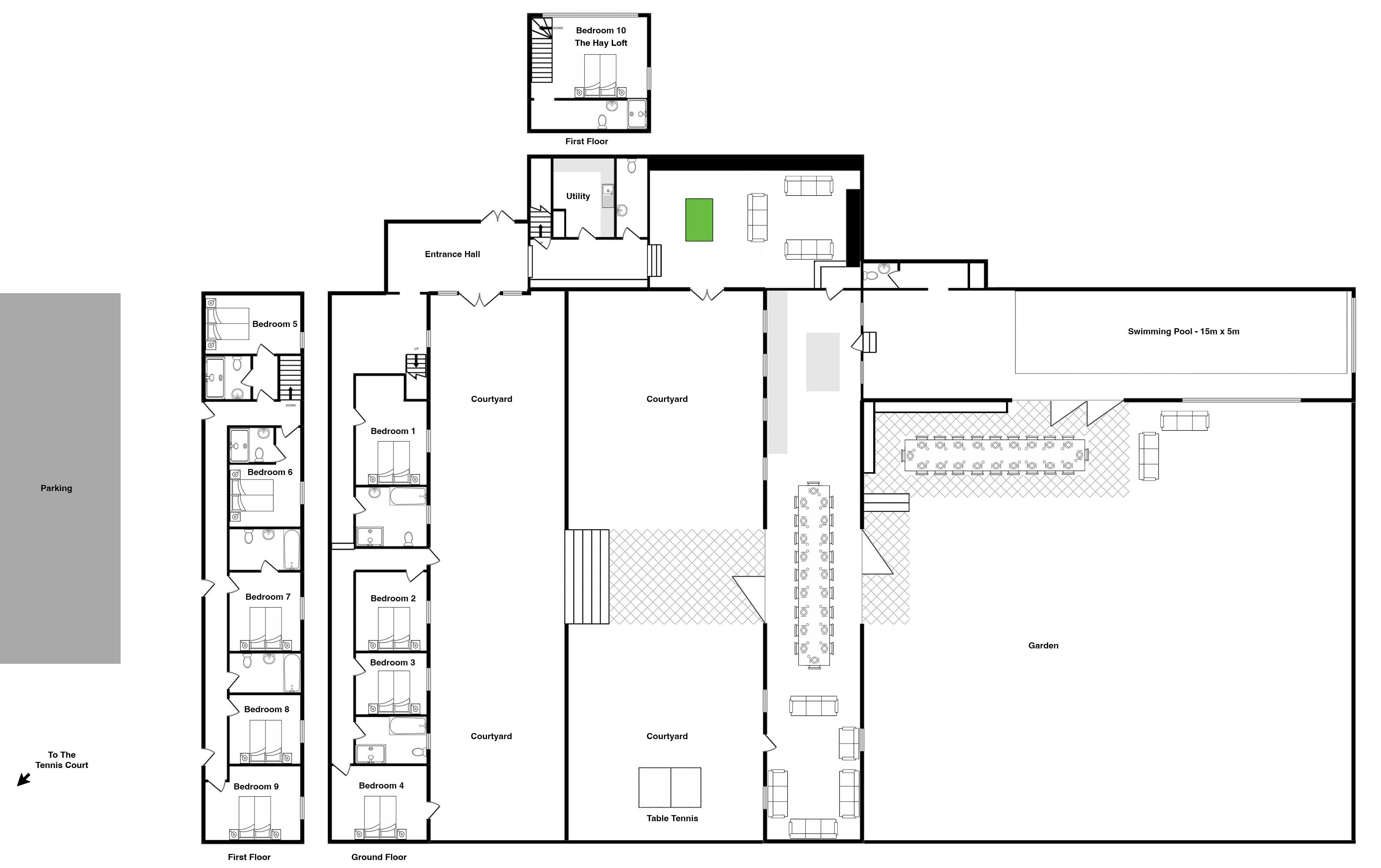
Ortensia - Bedroom 1 on the ground floor Bedroom 1
A ground floor room with zip and link beds (super king or twin) and shared use of either of the two family bathrooms, both with a bath and walk-in shower.
Sleeps 2. -
Ortensia - Bedroom 2: soft pink tones for a restful nights' sleep Bedroom 2
A ground floor room with zip and link beds (super king or twin) and shared use of either of the two family bathrooms on the ground floor, both with a bath and walk-in shower.
Sleeps 2. -
Ortensia - Bedroom 3, on the ground floor Bedroom 3
A ground floor room with zip and link beds (super king or twin) and shared use of either of the two family bathrooms on the ground floor, both with a bath and walk-in shower.
Sleeps 2. -
Ortensia - Bedroom 4 opens onto the courtyard Bedroom 4
A ground floor room with zip and link beds (super king or twin) and shared use of either of the two family bathrooms on the ground floor, both with a bath and walk-in shower. This room has direct access to the courtyard.
Sleeps 2. -
Ortensia - Bedroom 5: soft and restful, on the first floor Bedroom 5
A first floor room with zip and link beds (super king or twin) and an ensuite shower room.
Sleeps 2. -
Ortensia - Bedroom 6: Cool pastel shades give a modern country feel Bedroom 6
A first floor room with zip and link beds (super king or twin) and an ensuite shower room.
Sleeps 2. -
Ortensia - Bedroom 7 on the first floor - cool blues Bedroom 7
A first floor room with zip and link beds (super king or twin) and an ensuite bathroom with an overhead shower.
Sleeps 2. -
Ortensia - Bedroom 8, on the first floor Bedroom 8
A first floor room with zip and link beds (super king or twin) and use of a bathroom with a bath and overhead shower, shared with Bedroom 9.
Sleeps 2. -
Ortensia - Bedroom 9 on the first floor, such a gentle ambience Bedroom 9
A first floor room with zip and link beds (super king or twin) and use of a bathroom with a bath and overhead shower, shared with Bedroom 8.
Sleeps 2. -
Ortensia - Bedroom 10/The Hayloft - A secret bedroom on the first floor Bedroom 10 (The Hayloft)
A first floor room with its own access via a secret door. Beds are zip and link (super king or twin) and there’s a shower room. A window looks over the games room/cinema room.
Sleeps 2. -
Ortensia - A supersize living/entertaining space where you can all gather together Kitchen
2 highchairs are available. If requested these will be left in the kitchen.
-
Ortensia - The games room/movie room Equipment
This property owner offers the following items. If required these can be selected while doing your bed configurations within your booking.
2 x Highchairs
2 x Travel Cots (age 2 yrs and under)